Kv Korporalen 9, Stockholm

Ombyggnad av vindar till 5 lägenheter

Plats: Östermalm, Stockholm
Tidpunkt: 2013

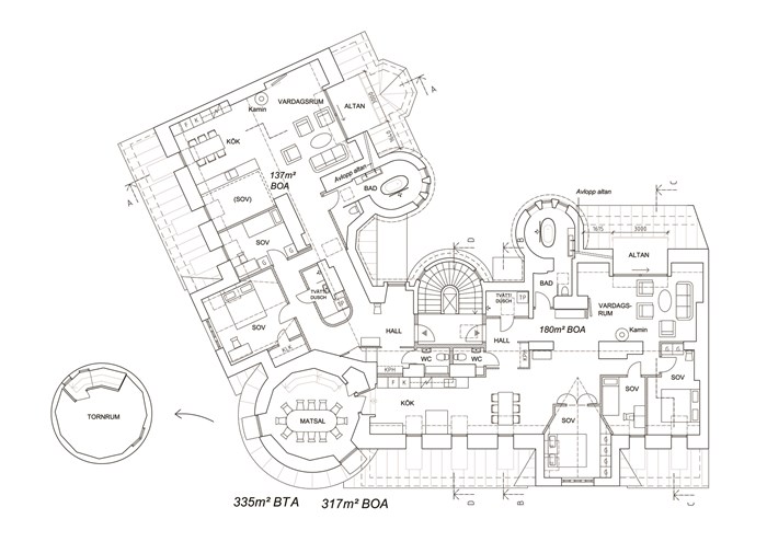
Ombyggnad av ca 850kvm vind till 5 exklusiva vindslägenheter. Arbetet omfattade bl.a bygglov och bygghandling.

 
















Till toppen